This four townhome community is located on a quiet street right in downtown Keene.
Imagine residential country-style living in the center of Keene within easy walking distance to many Keene locations. Walk to Dunkin’ Donuts, D’Angelo's, Starbucks, Panera Bread, CVS, Antioch University of New England, the beautiful Ashuelot River Park. Kayak or canoe on the nearby Ashuelot River. Visit the Keene library and churches, enjoy downtown Keene for shopping and dining or a summer concert in Central Square. Grocery shopping is just a few blocks away.
Major renovations transformed these four townhomes from late 1800-era mill supervisory company homes to modern-day elegant two and three bedroom homes. Full basements and full attics offer extra storage space with some units having large storage rooms ideal for sports equipment or extra furniture. All have laundry facilities with washer and dryers. Large back yard with garden area and picnic table for outdoor enjoyment. Plenty of parking for residents and visitors.
Every floor plan is different — each offering its own brand of charm.
No smokers or pets.
Rent Per Month
Contact us for pricing.
9-17 Ashuelot Court Apartments, Keene, NH
Ashuelot Court #9
(3 bedrooms):
This three-bedroom townhome is charming with a beautifully remodeled efficient eat-in kitchen with granite counter tops, large living room and a first floor large bathroom with a tub/shower and a laundry area with washer and dryer. First level offers a bedroom with its own private entrance. It boasts unique wall treatments, gorgeous hardwood floor, new windows and a lovely built-in unit. The second level provides space for a sitting area in addition to two attractive good-sized carpeted bedrooms. All freshly painted and new carpeting.
1st Floor Total Square Feet: 635
Living Room: 210 SF
Kitchen: 95 SF
Bedroom 1: 210 SF
Bath: 105 SF
2nd Floor Total Square Feet: 410
Bedroom 2: 155 SF
Bedroom 3: 170 SF
Ashuelot Court #11
(2 bedrooms):
This two-bedroom townhome is lovely with a new beautiful custom kitchen with gorgeous granite counter tops and generous storage. The first level offers a large charming living room with many windows offering natural light. The bathroom includes a washer and dryer. Off the living room is a large storage room with access to the back yard. The second level offers two charming carpeted bedrooms.
1st Floor Total Square Feet: 635
Living Room: 210 SF
Kitchen: 95 SF
Bath: 105 SF
Storage: 210 SF
2nd Floor Total Square Feet: 410
Bedroom 1: 155 SF
Bedroom 2: 170 SF
Ashuelot Court #15
(3 bedrooms):
This three-bedroom townhome is cheerful and cozy offering three bedrooms and a large storage area. Recently remodeled eat-in kitchen is charming with granite counter tops and a unique breakfast bar. A large storage area off the living room provides residents with useful storage space and access to the back yard. One bedroom is located off the living room and two on the second level along with a bathroom. Great paint colors make the apartment inviting and a perfect tidy home
1st Floor Total Square Feet: 585
Living Room: 195 SF
Kitchen: 95 SF
Bedroom 1: 80 SF
Storage: 195 SF
2nd Floor Total Square Feet: 375
Bedroom 2: 135 SF
Bedroom 3: 165 SF
Bath: 35 SF
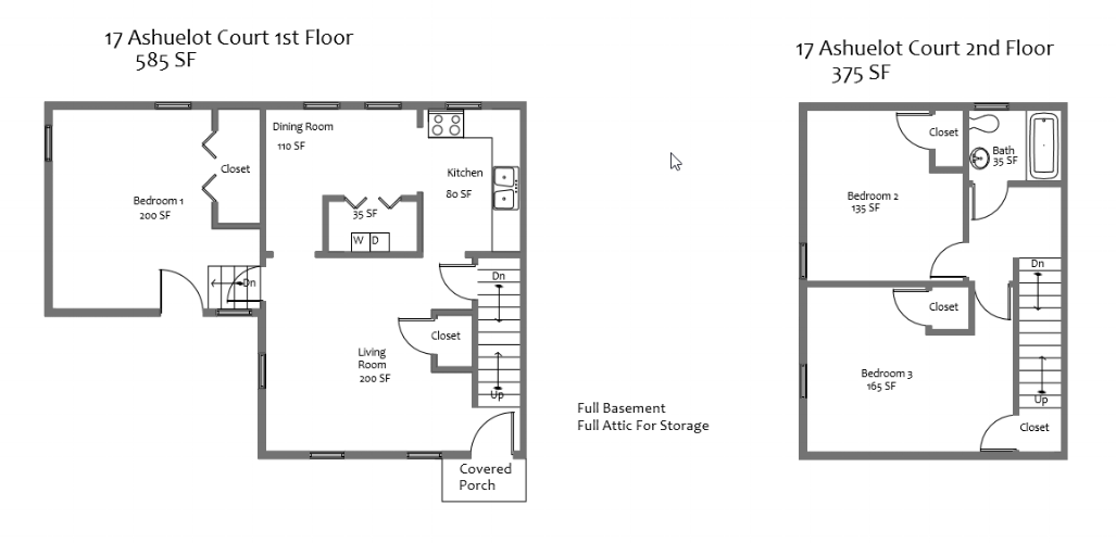
Ashuelot Court #17
(3 bedrooms):
An ideal floor plan for a family or three individual residents. This townhome offers three good-sized bedrooms, a large bright living room, a kitchen, separate dining room and laundry facilities. One bedroom is off the living room with its own private entrance and beautiful floor design. The second floor has a bathroom and two bedrooms — with pleasant paint colors and new carpeting.
1st Floor Total Square Feet: 585
Living Room: 200 SF
Dining Room: 110 SF
Kitchen: 80 SF
Bedroom 1: 200 SF
2nd Floor Total Square Feet: 375
Bedroom 2: 135 SF
Bedroom 3: 165 SF
Bath: 35 SF
Contact us with questions or to arrange a showing.
Click or tap the button to contact Judy.
